|
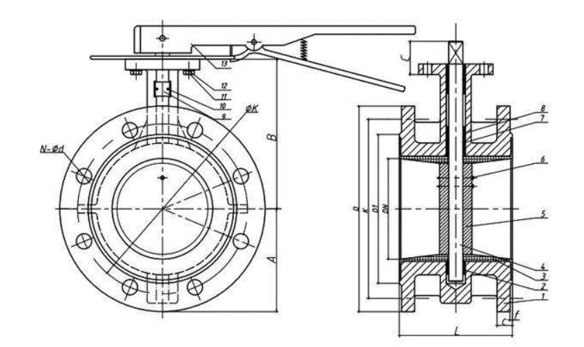
手柄法蘭蝶閥D41X原理作用: 手柄法蘭蝶閥的啟閉件是一個圓盤形的蝶板,在閥體內繞其自身的軸線旋轉,從而達到啟閉或調節的目的。蝶閥的優點有結構簡單、體積小、重量輕、安裝尺寸小、開關迅速。 D41X/D41F型法蘭蝶閥系列采用中線垂直板、軟密封閥座結構,結構簡單,制造方便,價格便宜;手動蝶閥是手柄驅動適用于適用于公稱壓力≤1.6MPa,公稱通徑小于DN200的各種水、油、氣等介質的管道上。 手柄法蘭蝶閥D41X性能特點: ①結構簡單,力矩小,操作方便、迅速; ②具有良好的流量調節功能和密封性能,氣壓測試泄露為零; ③合成橡膠閥座具有耐腐蝕、耐沖蝕、尺寸穩定、回彈性好; ④可裝配電動執行器、氣動執行器,實現遠程大規模集中控制。
![]()
|
-
結構簡單,力矩小,操作方便、迅速
-
手動蝶閥啟閉方便迅速、省力、流體阻力小,可以經常操作。
-
采用中線型結構,具有越關越緊的密封功能,密封性能可靠。
-
體積小、重量輕、安裝尺寸小、開關迅速
-
密封副材料選用球墨鑄鐵和丁腈耐油橡膠配對,使用時間長
-
整體烤漆,能有效防止銹蝕且只要更換密封閥座密封材料,就可使用于不同介質。


